PROJECT FULLERTON 88AP- MADIOS SANTOSO

PROJECT FULLERTON 88AP
MADIOS SANTOSO

Mr. H (Name undisclosed)

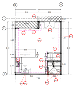
Proyek perumahan No. 88AP berlokasi di Komplek Fullerton, Jalan Madios Santoso. Rumah ini dirancang oleh tim CIPTA RANCANG KONSTRUKSI dengan konsep kontemporer yang menekankan efisiensi tata ruang sesuai lokasi, sekaligus memastikan sirkulasi udara segar mengalir dengan baik di setiap sudut rumah.

Designed by: PT CIPTA RANCANG KONSTRUKSI 

Lokasi proyek: Komplek Fullerton No. 88AP Jln. Madios Santoso Medan

Tipe bangunan: Residensial hunian tempat tinggal

Luas Area rumah: 8 meter x 7 meter 
Tingkat Rumah: 3 lantai + 1 lantai teras 
Tinggi bangunan: 16 meter

Completed on 30 November 2024 

Undisclosed

DOCUMENTATION

what they say?

Konstruksi yang dikerjakan cukup cepat dan tim CRK sangat responsif dalam pengatasan permasalahan

Mr. H

Owner of Fullerton 88AP