PROJECT KONSTRUKSI
BHAYANGKARA CAFE MEDAN
Owner of Bhayangkara Cafe Medan
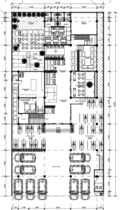
Proyek Konstruksi Bhayangkara Café Medan yang berlokasi di Jalan Bhayangkara, Medan Timur, dirancang oleh tim CIPTA RANCANG KONSTRUKSI dengan mengusung konsep kontemporer minimalis. Desain ini menekankan efisiensi tata ruang yang selaras dengan fungsi kafe, sekaligus menghadirkan suasana estetis dengan elemen dekoratif yang menarik, sehingga menciptakan pengalaman nyaman dan berkesan bagi para pengunjung.
Designed by: PT CIPTA RANCANG KONSTRUKSI
Lokasi proyek: Cafe Bhayangkara Medan Jln. Bhayangkara (samping BRIMOB), medan
Tipe bangunan: Bangunan Komersial dan Pertokoan

Luas Area rumah: 21 meter x 42 meter
Tingkat Rumah : 2 lantai + 1 lantai mezzanine
Tinggi bangunan: 15 meter
Under Construction
Project Started: 1 April 2025










